Текущее время: Вт дек 16, 2025 10:08 am

Часовой пояс: UTC + 3 часа




Начать новую тему Ответить на тему  [ Сообщений: 404 ]  На страницу Пред.  1, 2, 3, 4, 5, 6, 7 ... 27  След.
Автор Сообщение
 Заголовок сообщения: Re: Кольца на приборную панель
СообщениеДобавлено: Ср сен 18, 2013 3:04 am 
Не в сети
Аватара пользователя

Зарегистрирован: Вс окт 07, 2012 3:26 am
Сообщения: 1994
Откуда: 152,Лукоянов-Арзамас-Москва(ВДНХ)
Павел мне писал что 35.

_________________
Авенсис т-22,седан,3s-fe,DIS-2,s54,Sol,La 14-02,209,07.2001 год,91000 км.Была Карина Е,1996,4A-FE,STD.


Вернуться к началу
 Профиль Отправить email  
 
 Заголовок сообщения: Re: Кольца на приборную панель
СообщениеДобавлено: Ср сен 18, 2013 9:02 am 
Не в сети
Аватара пользователя

Зарегистрирован: Пн сен 16, 2013 1:10 pm
Сообщения: 225
Откуда: Украина, г.Кам-Подольский
ustass писал(а):
Сергей С@ныч писал(а):
35$ с пересылом,если я правильно понял.

это с ибэя.
а почём будут изготовленные - никто не говорил.

не шути так, какое ибая ручная работа в Украине, делаю на десятки авто своими руками а тут шьют китайское дерьмо не хорошо!


Вернуться к началу
 Профиль Отправить email  
 
 Заголовок сообщения: Re: Кольца на приборную панель
СообщениеДобавлено: Ср сен 18, 2013 10:51 am 
Не в сети
Аватара пользователя

Зарегистрирован: Пн сен 16, 2013 1:10 pm
Сообщения: 225
Откуда: Украина, г.Кам-Подольский
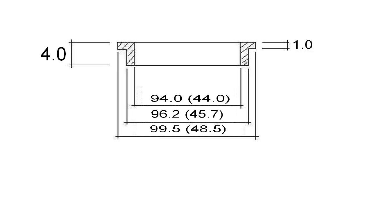
чертежик переделал


Вложения:
.JPG
.JPG [ 39.05 KiB | Просмотров: 21442 ]
Вернуться к началу
 Профиль Отправить email  
 
 Заголовок сообщения: Re: Кольца на приборную панель
СообщениеДобавлено: Ср сен 18, 2013 12:20 pm 
Не в сети
Аватара пользователя

Зарегистрирован: Вт мар 12, 2013 8:50 am
Сообщения: 756
Откуда: Питер, Купчино-city
ИМХО наружная фаска слишком толстая получается. Смотрится как-то не так.....

_________________
Пришелец с Carina-e.ru, Celica.su, Celica-club.ru
Carina E 7A-FE MT Liftback - продано
Celica ST202 3S-GE MT - продано
Avensis T22 7A-FE MT Sedan - продано
Focus 2.0 AT Sedan - пол часа позора и на работе.


Вернуться к началу
 Профиль Отправить email  
 
 Заголовок сообщения: Re: Кольца на приборную панель
СообщениеДобавлено: Ср сен 18, 2013 12:27 pm 
Не в сети
Аватара пользователя

Зарегистрирован: Чт май 29, 2008 6:18 pm
Сообщения: 1338
Откуда: Южные степные просторы
Имя: Андрей
Духless
Насколько я себе представляю, чтобы сделать ее тонкой, придется колодцы дорабатывать, делать их цилиндрическими из конических. Фаска всего на полмиллиметра перекрывает большой диаметр конуса колодца.
В любом случае, кольца я заказал и смогу сделать фото после их установки. Будет возможность оценить.

_________________
Андрей на Toyota Avensis'97, 7A-FE, LineTerra, МКПП, Лифтбэк,


Вернуться к началу
 Профиль Отправить email  
 
 Заголовок сообщения: Re: Кольца на приборную панель
СообщениеДобавлено: Ср сен 18, 2013 12:28 pm 
Не в сети
Аватара пользователя

Зарегистрирован: Вт мар 12, 2013 8:50 am
Сообщения: 756
Откуда: Питер, Купчино-city
Fidel писал(а):
кольца я заказал и смогу сделать фото после их установки

Ждем с нетерпением!

_________________
Пришелец с Carina-e.ru, Celica.su, Celica-club.ru
Carina E 7A-FE MT Liftback - продано
Celica ST202 3S-GE MT - продано
Avensis T22 7A-FE MT Sedan - продано
Focus 2.0 AT Sedan - пол часа позора и на работе.


Вернуться к началу
 Профиль Отправить email  
 
 Заголовок сообщения: Re: Кольца на приборную панель
СообщениеДобавлено: Ср сен 18, 2013 12:44 pm 
Не в сети
Аватара пользователя

Зарегистрирован: Вс окт 07, 2012 3:26 am
Сообщения: 1994
Откуда: 152,Лукоянов-Арзамас-Москва(ВДНХ)
И я заказал. :)

_________________
Авенсис т-22,седан,3s-fe,DIS-2,s54,Sol,La 14-02,209,07.2001 год,91000 км.Была Карина Е,1996,4A-FE,STD.


Вернуться к началу
 Профиль Отправить email  
 
 Заголовок сообщения: Re: Кольца на приборную панель
СообщениеДобавлено: Ср сен 18, 2013 3:51 pm 
Не в сети
Аватара пользователя

Зарегистрирован: Пн сен 16, 2013 1:10 pm
Сообщения: 225
Откуда: Украина, г.Кам-Подольский
Духless писал(а):
ИМХО наружная фаска слишком толстая получается. Смотрится как-то не так.....

на больших кольцах стенка получится 2,75 мм а на малых всего 2,25мм поверте моему опыту что это будет оптимально

БУДЕТ БОМБА!!!!


Вернуться к началу
 Профиль Отправить email  
 
 Заголовок сообщения: Re: Кольца на приборную панель
СообщениеДобавлено: Ср сен 18, 2013 3:54 pm 
Не в сети
Аватара пользователя

Зарегистрирован: Пн сен 16, 2013 1:10 pm
Сообщения: 225
Откуда: Украина, г.Кам-Подольский
Fidel писал(а):
Духless
Насколько я себе представляю, чтобы сделать ее тонкой, придется колодцы дорабатывать, делать их цилиндрическими из конических. Фаска всего на полмиллиметра перекрывает большой диаметр конуса колодца.
В любом случае, кольца я заказал и смогу сделать фото после их установки. Будет возможность оценить.


очень точно, если делать с фаской кольца то вам придется в маске снимать весь скос пластмасы и делать его 99,0мм вместо 96,0 а это никому не нужный гемор!
у меня лично на авто стоят кольца квадратной формы фаска мне вообще не нравится, хотя ее делаю много!


Вернуться к началу
 Профиль Отправить email  
 
 Заголовок сообщения: Re: Кольца на приборную панель
СообщениеДобавлено: Ср сен 18, 2013 5:12 pm 
Не в сети
Аватара пользователя

Зарегистрирован: Ср июн 08, 2011 2:08 pm
Сообщения: 669
Откуда: Кострома
а внутри фаску сделать можно ? по верхнему краю

_________________
CARINA E 3SFE МТ 1993 - продана в 2011-м
AVENSIS AT22 3SFE МТ SOL 2001
http://www.plus-kostroma.ru


Вернуться к началу
 Профиль Отправить email  
 
 Заголовок сообщения: Re: Кольца на приборную панель
СообщениеДобавлено: Ср сен 18, 2013 8:13 pm 
Не в сети
Аватара пользователя

Зарегистрирован: Пн сен 16, 2013 1:10 pm
Сообщения: 225
Откуда: Украина, г.Кам-Подольский
минимальную можно, но имея опыт в кольцах скажу что будет не красиво


Вернуться к началу
 Профиль Отправить email  
 
 Заголовок сообщения: Re: Кольца на приборную панель
СообщениеДобавлено: Чт сен 19, 2013 9:17 am 
Не в сети
Аватара пользователя

Зарегистрирован: Ср июн 08, 2011 2:08 pm
Сообщения: 669
Откуда: Кострома
с фаской будет дополнительное преломление света, будет сверкать как бриллиант :)

_________________
CARINA E 3SFE МТ 1993 - продана в 2011-м
AVENSIS AT22 3SFE МТ SOL 2001
http://www.plus-kostroma.ru


Вернуться к началу
 Профиль Отправить email  
 
 Заголовок сообщения: Re: Кольца на приборную панель
СообщениеДобавлено: Чт сен 19, 2013 9:46 am 
Не в сети
Аватара пользователя

Зарегистрирован: Вт июн 05, 2012 6:40 pm
Сообщения: 511
Откуда: Kotka, Finland
Роман44 писал(а):
с фаской будет дополнительное преломление света, будет сверкать как бриллиант :)

Ну, не как бриллиант, но что-то в этом есть)))
Кто уже сделал себе? Есть фотки? Я уже хочу)))

_________________
Была Toyota Carina E 1993 хэтч 4A-FE 1,6л 115л.с. 5МКПП
Стала Toyota Avensis 1998 универсал 4A-FE 1,6л 110л.с. Terra 5МКПП Изображение
Изображение


Вернуться к началу
 Профиль  
 
 Заголовок сообщения: Re: Кольца на приборную панель
СообщениеДобавлено: Чт сен 19, 2013 9:50 am 
Не в сети
Аватара пользователя

Зарегистрирован: Пн сен 16, 2013 1:10 pm
Сообщения: 225
Откуда: Украина, г.Кам-Подольский
вроде бы только я делаю, завтра будут готовы завтра и выложу фото, хотя просто на колене в приборке фото появится через недельки 2


Вернуться к началу
 Профиль Отправить email  
 
 Заголовок сообщения: Re: Кольца на приборную панель
СообщениеДобавлено: Чт сен 19, 2013 10:16 am 
Не в сети
Аватара пользователя

Зарегистрирован: Вс окт 07, 2012 3:26 am
Сообщения: 1994
Откуда: 152,Лукоянов-Арзамас-Москва(ВДНХ)
http://www.carina-e.ru/viewtopic.php?f= ... &start=950 здесь можно глянуть.

_________________
Авенсис т-22,седан,3s-fe,DIS-2,s54,Sol,La 14-02,209,07.2001 год,91000 км.Была Карина Е,1996,4A-FE,STD.


Вернуться к началу
 Профиль Отправить email  
 
Показать сообщения за:  Поле сортировки  
Начать новую тему Ответить на тему  [ Сообщений: 404 ]  На страницу Пред.  1, 2, 3, 4, 5, 6, 7 ... 27  След.

Часовой пояс: UTC + 3 часа


Кто сейчас на конференции

Сейчас этот форум просматривают: нет зарегистрированных пользователей и гости: 0


Вы не можете начинать темы
Вы не можете отвечать на сообщения
Вы не можете редактировать свои сообщения
Вы не можете удалять свои сообщения
Вы не можете добавлять вложения

Найти:
Перейти:  
Powered by phpBB © 2000, 2002, 2005, 2007 phpBB Group
Русская поддержка phpBB
[ Time : 0.036s | 33 Queries | GZIP : Off ]
./cache/ is NOT writable.